
(El Cementerio, vista desde estremo sur de Acrópolis)
ロサリラ神殿が埋もれている建造物 16 の南側面にある通路から南方向に見下ろせるのがエル・セメンテリオで、高台にある通路に説明プレートが
設置されいて、四角い中庭を囲む形で 25を超える建物群があり、貴族の居住区だった事が説明されます。

(Vista panorámica de El Cementerio)
高台から俯瞰できるので下に降りる前にパノラマ画像でエル・セメンテリオを見ておきます。 手前が建造物 29 で、ここからまた一段下がって
中庭と建造物が続きます。
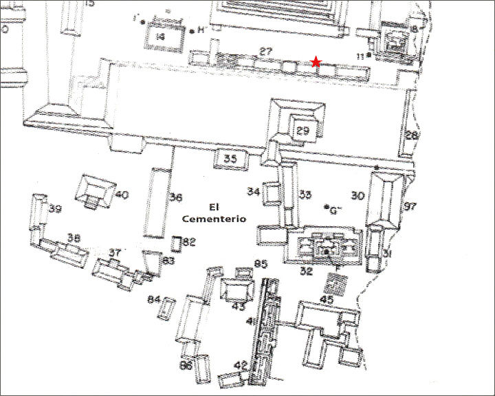
(クリックすると地図が別画像が開きます。)
地図は北が上で、パノラマ画像は地図の赤い星印から南方向を撮ったもので南北が逆になっていました。

(Plaza Principal de El Cementerio)
下に降りて現在地は建造物 30 の北側で、広場はエル・セメンテリオ北東側の中央広場になり、左手奥 (広場の南側) に中心になる建造物 32
が見えます。

(Estructura 32)
建造物 32 は階段の付いた基壇部があり建物は下の部分を残して崩壊していますが、これが修復された姿で、発掘で回収されたモザイク彫刻を
元に壁面全体が彫刻博物館に復元されています。

(Estructura 32 reconstruida, Museo de las Esculturas)
これがその復元で、遺跡の廃墟からは想像もつきませんが、戸口左右の壁龕と戸口上部にモザイク彫刻が嵌め込まれ、建物前面が屋根飾りも
含めて復元されています。
博物館の説明板によると、この建物は 16代ヤシュ・パサフ王の親戚にあたるチャークと言う名の貴族により8世紀後半に建てられ、水と豊穣の
シンボルで飾られていたそうです。 彫刻のどの部分かわかりませんが、魚を象徴するものがあったそうで、9つの地域の族長が集まって合議が
行われたと言われるポポル・ナ (建造物 22A) に刻まれた9つの地域の中の魚の文字と符合し、建造物 32 が9つの地域の有力貴族の1人の
住居だったと考えられるようです。

(Glifos y personalidades de Estructura 22A, Popol Na)
彫刻博物館にはポポル・ナが復元され、9つの地域名と人物像の内の一部は横に別に展示されていて、この写真の中に魚を表す文字が
あるそうですが…。

(Tres Casitas recuperadas)
建造物 32 に関連して家形の石の彫刻が3つ展示されています。 ヤシュ・パサフ王の兄弟の名も刻まれ、建物の奉納儀礼に際して
王族から贈られたものと考えられるようです。

(Estructura 33)
遺跡に戻り、これは中央広場の西側を閉じる建造物 33 で、建造物 32 と隣り合って東向きに建てられています。

(Estructura 33 reconstruida, Museo de las Esculturas
建造物 33 を復元したものがこちら。 彫刻博物館で建造物 32 の隣にあります。 全体が漆喰で白く塗られ彫刻が少なく作業中かと思いましたが、
これが最終形。 当時の様子がわかるように この形で展示してあるそうです。 建造物 32 より後に建てられ 比較的シンプルな造りで、
コパンでも最晩年の建物になるようです。


(Detalle de esculturas)
建物の上縁部を飾る彫刻には顔と包みが描かれ、上に家を表す記号があり、所有者が貴族の家系である事を示すようです。 戸口上部の彩色彫刻は
メキシコ中央高原で年を示す記号に類似しており暦のようです。

(Parte norte de Plaza Principal)
上は中央広場の北側で、地図には建物番号がないので、階段だけだったかもしれません。 下は同様に中央広場で北東角にあたります。

(Altar circular en la esquina noreste de plaza principal)
北東角には写真の円形の祭壇がありますが、番号を含めて詳細は不明です。

(Parte sur de El Cementerio)
建造物 33 の上から南の方を見ると更に中庭を囲む建物群が見えてきます。

(Plaza suroeste de El Cementerio)
これは北から見た南西の中庭を囲む建物群になり、左手前が建造物 41 で、右奥は建造物 43 です。

(Estructura 42) (Estructura 43)
左は北側から見た建造物 42、右が南東側から見た建造物 43 で、共に南西の中庭を囲む建物ですが、詳細は判りません。 建造物 42 の南側は
コパン川で、エル・セメンテリオは貴族の居所であると同時に水利をコントロールする重要な位置を占めていました。

(Estructura 29)
建造物 33 に戻り、北方向です。 建造物 33 の先に見えるのが建造物 29 で、その奥には木々の間からアクロポリスの建造物 16 が顔を覗かせ、
右奥にはヤシュ・パサフ王の墓所があった建造物 18 も見えています。

(Parte sur de Estructura 29)
建造物 29 に少し近づいて南から見たところです。 エル・セメンテリオでは建造物 32 に次いで大きな建物で、東側に階段が取り付けられているので
南側は側面になるようです。

(Parte este de Estructura 29)
こちらが東正面です。 建造物 29 では 1991年に全面的な発掘修復作業が行われ、西側の壁面はそっくりそのまま倒れ込んでいたので容易に
立て直す事が出来、これを手掛かりにして他の面の復元も可能になったそうです。

(Fachada oeste reconstruida en el sitio)
建造物 29 の北側に写真の壁面彫刻が復元されていますが、これが立て直された西側の壁面のようで、同じモチーフの壁面が彫刻博物館に
復元されています。

(Fachada sur reconstruida, Museo de las Esculturas)
これが博物館にある復元で、南側の壁面となっています。 遺跡では南側面は上の方の写真で確認出来るように全く無くなっていますが、戸口も窓も無く
壁一面に彫刻が施されていた事になります。
壁面上部には超自然の人物像が置かれ、頭の上の壁龕にはキン(太陽)を表す四つ葉が描かれ、壁龕の外側にはヘビが四匹 頭を出しています。
壁面下部に描かれた 3つの大きな図柄はまだ解釈が定まっていないようですが、内側の包みと丸い顔は初代王ヤシュ・クック・モを想起させ、
上下にある暦の記号から メキシコ中央高原で 52年に一度祝われる火の儀式に関連したものではないかと考えられるようです。
建物内部に休息用のベンチが無く、壁に9つの穴が設けられているだけで、祖先の魂が眠る場所として作られた建物と言う解釈も
あるようです。

(Estructura 29 conservada en el sitio)
西側の壁面と思われる復元には保護の為の屋根がついているので、発掘されたオリジナルの石材が多く含まれるのでしょう。 左側には復元
された柱も見えます。 裏にある斜面の上はアクロポリスになります。


(Personalidades esculpidas)
復元された西側の壁面から、窓の下に置かれた人物像です。 博物館に復元された南の壁面にも類似した彫刻があり、超自然の人物像と
説明されているので、実在する人物を刻んだものではないようです。 顔の表情が豊かで、実在するモデルが居たような気もしますが。

(Columnas con diseño de nubes o humo)
復元された西側の壁面の左に、更に柱が6本保存されています。 柱に残される ”S” の字が横になった図柄は 雲か煙を示すようです。
これらの復元を元に建物を全面的に立て直したらどんな姿になるのでしょう。
アクロポリスから見下ろすエル・セメンテリオは所謂 廃墟で、コパンの主要部 と比べると面白味の少ない場所ですが、こうして復元された
モザイク彫刻を重ね合わせてみると また興味深いものになってきます。 彫刻で華麗に装飾された遺跡よりも荒れ果てた廃墟の遺跡が好きだと言う
向きには人気(ひとけ) の少ないエル・セメンテリオで佇んでみるのも良いかもしれません。