
(Vista aérea de Región Petexbatún con la ubicación de las ruinas principales)
ペテシュバトゥン地区での2日目、本命のドス・ピラスに向います。 ドス・ピラスへは道路が整備されておらず、GOOGLE EARTH で
空から見ても大きな街は無く、あるのは緑色の森林に湖と河川ばかり。 主な遺跡を重ね合わせて見ました(遺跡の位置はおよそです)。
宿泊地のプンタ・デ・チミーノからボートでパソ・カリーベ(赤文字)まで行き、ここから馬の助けを借りて、アロヨオ・デ・ピエドラ
経由ドス・ピラスです。

(El amanecer en el embarcadero de Punta de Chimino)
最初のボートは乗っているだけで良いのですが、その先 ドス・ピラスまで 12Km の行程が難物で 所要時間 3時間との事、早朝に
出発しました。 写真は朝6時、日の出直後のプンタ・デ・チミーノの船着場で、ボートの準備をするアルフォンソ君。


(Saliendo de Punta de Chimino hacia Paso Caribe)
プンタ・デ・チミーノ (チミーノ岬=写真左)を後にして、パソ・カリーベへ向います。 出発は朝6時半でした。 天気は大丈夫
そうです。

(Embarcadero de Paso Caribe)
20分そこそこでパソ・カリーベへ到着。 前日にここで交渉しておいたので、ガイド(ホテルでは Trail Tracker と呼んでいました) が
待機していました。


(Partiendo para Dos Pilas en caballo)
馬は2頭用意されていてガイド君も乗るようです。 後でわかったのですが、所々歩いて渡れないようなぬかるみがあったので、ガイドも
乗馬だったようです。 馬の操縦方法、アクセル、ブレーキ、右と左、頭では理解していても賢い馬は不慣れな乗り手の言う事は聞いて
くれません。 最初から手綱をガイド君に渡します、情けないですが。


(Viaje en caballo)
朝靄の中を出発、6時50分でした。 前日に雨が降ったとかでいきなり泥沼の悪路。 馬は足をとられまいと駆け足になり、こちらは
振り落とされないよう必死に鞍頭にしがみつきます。


(Llegando a Arroyo de Piedra)
ガイドはマヌエル君。 馬に馴れていない訪問者も多いようで、乗馬のままでは厳しい倒木、沢、急坂等は適切に下馬を勧めてくれます。
馴れない長時間の乗馬で臀部には痛みが…、喜んで下馬してホッと一息、そしてまた馬に乗り…。 およそ1時間半でアロヨ・デ・ピエドラ
に到着でした。

(Plaza principal de Arroyo de Piedra)
ここは目的地ではありませんが、事前にマヌエル君に見学希望を伝えてありました。 「少しの時間なら」と言う事で駆け足で遺跡訪問。
広場に近づくと同じ看板がもう1枚あり、その向こうに石碑が見えてきます。
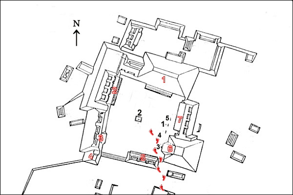
地図はネットで公開されていたアロヨ・デ・ピエドラの
第三次調査報告にあったもの が唯一でこれを活用させてもらう事にしました。
地図を北向きにして、広場に面した建造物は白抜き赤文字で番号を記しました。 黒で表わした数字は石碑の番号です。
足跡に沿って南東角から広場に入りました。

(Esquina noroeste de Plaza principal)
広場の北西方向、右が建造物1、左が建造物2の土塁で(と言ってもただの茂みにしかみえませんが)、中央の屋根の下に石碑2があり、
右横に立っているのが石碑2の複製です。

(Montículo de Estructura 1)
建造物1に近づいてみると土塁がわかります。 一番下の方には階段状の石材が少し見え、表土を取り除いていけば石の建造物が姿を
現すのでしょうか。

(Foto panorámica de Estructura 1 y 2)
建造物2が繋がるようにパノラマ合成してみました。 建造物2の下方にも石の階段が見えます。

(De estructura 2 hacia esquina suroeste)
そしてこれは建造物2の左方向で、建造物3と広場の南側にあたります。 以上3枚の画像で広場を北から西、南と見渡してみた事とに
なります。

(Réplica de Estela 2)
広場中央に戻り石碑2を正面から見てみました。 上の方で既にこれが複製だとネタ晴らしをしてしまいましたが、ペテシュバトゥン地区
ではこういう複製が作れる程度にしっかりした石碑が数多く残されていて、その碑文の研究から歴史の再構築が進んでいます。

(Réplica de Estela 2)
着飾った王の肖像に碑文も刻まれていて、複製とは言えなかなか見事な出来栄えです。 石碑等の研究からペテシュバトゥン地区の歴史が
徐々に明らかになり、ドス・ピラスの侵入以前はアロヨ・デ・ピエドラは隣のタマリンディートの支配地で、671年にドス・ピラスに攻略
された後 タマリンディートと共にドス・ピラスの属国になったようです。
この石碑2はタマリンディートの王(支配者G、チャクビ・アク)が 731年に建立させたもので、日付は 9.15.0.0.0. つまり15カトゥン
を祝ったものと思われます。 碑文からチャクビ・アクの父は支配者F、母がドス・ピラス初代王のバラフ・チャン・カウィールの娘だった事が
わかり、ドス・ピラスが武力制圧の後に婚姻関係を結んで地域を治めた様子が窺われます。 ドス・ピラスの2代目王、イツァムナーフ・
カウィールの名も優越王として刻まれているそうです。

(Estela 2 original)
こちらは屋根の下に安置されている石碑2の本物(だと思います)。


(Parte facial de Estela 2, réplica y original)
顔の部分を複製(左)と実物で比べてみました。 角度の違いはありますが、実物の方がなんだか迫力が感じられます。


(Lado este de Plaza, y Estela 3)
広場西側には石碑が4本ありますが、立っているのはその内2本だけ。 写真右は建造物6の前に置かれた石碑3で、彫刻
が無く手前に丸い祭壇を伴います。


(Estela 4)
石碑4はかなり風化が進み複製はなく、保護の屋根の下に置かれています。


(Estela 1, réplica y original)
石碑1は屋根の下の本物に加え複製が立てられています。 右の写真で 石碑1複製の左側に緑の板が横たわっていますが、これは
苔むした石碑5のようです。

(Estela 1 réplica)
石碑1複製の拡大。 これは 613年の日付を持ち、タマリンディートの王(支配者C、チャン・キニッチ)が刻まれているそうで、
これはドス・ピラスによる征服以前のものになります。
タマリンディートもドス・ピラスへ行く途中にあり、マヌエル君に聞いてみましたが、道が拓かれていないとの事でNGでした。
タマリンディートの地図 を見るとやはりアロヨ・デ・ピエドラより少し大きかったみたいです。

(Esquina sureste de Plaza principal)
タマリンディートはちょっと立ち寄るだけの約束で、たったの13分間の滞在。 開けたところの写真を撮りまくり逃げ帰るような
感じでした。 もう少し時間が許せば広場の周辺まで足を伸ばしてみたかったところです。 写真は広場の南東角で、ここを通って
馬を停めてある方へ。
目的地のドス・ピラスはまだ先。 どれだけ時間がかかるかわからず急ぎアロヨ・デ・ピエドラを後にしました。
目指すは
ドス・ピラス !
>