
(Entrada al sitio arqueológico)
駐車場に車を停め入場料の支払いを済ませて、ここから遺跡へ入ります。

(Mapa y breve explicación del sitio)
遺跡の入口を入ると地図と概略を記した案内板があります。
スペイン語、マヤ語、英語で説明がつけられ、マヤ語は一番汎用性のあるツェルタル語で書かれているそうです、どのみち読めないし
関係ありませんが。 パレンケの概略説明があったので、以下紹介しておきます。
「 パレンケはメゾアメリカでも最も重要な遺跡のひとつで、マヤ低地の北西に位置し、他のマヤ遺跡同様、公共祭祀建築および工芸技術に
目覚ましい進歩の跡を残します。 初期パレンケの痕跡は紀元前 100年頃の小さな農業村落に認められますが、古典期前期(300-600年)に入り
都市が形成され、古典期後期(600-900年)には現在のチアパス州とタバスコ州にまたがる広い地域を治める主要センターへと発展を
遂げます。」
遺跡訪問に先立って地図を確認しておきます。 パレンケ全体は下の写真(Arqueologia #107 Jan-Feb, 2011, p.48-49)にあるように東西 2Km を
超える地域に広がりますが、中枢部は右ページの緑の枠内で、ここが修復され公開されています。 地図左端の緑の矢印が遺跡に入った所で、
ここから探索開始です。
(遺跡の案内板もそうですが、パレンケの地図は南が上になっているものが多く、要注意。 上の地図は北向きにしてあります。)

(Arqueologia #107 Jan-Feb, 2011, p.48-49)
神殿 12、13、碑文の神殿 Templos 12, 13 y Templo de
las Inscripciones

(Templo 12, Calavera)
遺跡に入って直ぐ右手にあるのが神殿 12 (Templo 12、別名 髑髏の神殿)で、北向きの基壇上に小さな神殿があります。 神殿は向かって
右手前が崩れていますが、2本の柱で開口部が作られ奥に更に内神殿があったようで、十字のグループの神殿と似た造りです。

(Pilastra con relieve de estuco de cráneo)
開口部を支えた左の柱が残り、その基部には骸骨の漆喰彫刻があり、髑髏の神殿の謂れになっています。 神殿は漆喰を塗り込め、
赤や青で彩色されていたそうで、骸骨はウサギの骸骨と言われます。

(El Palacio y Templo 13 a la derecha)
髑髏のある柱の前から東方向に大宮殿が見えますが、次に行くのは隣の神殿 13 で、写真中央にある基壇に沿って保護の屋根が付けられた所です。
神殿 12 の直ぐ隣にも小神殿の基部のような遺構が残りますが、神殿は無くなっていて番号も振られていません。

(Templo 13)
これが神殿 13 の正面です。 基壇が神殿 12 よりかなり大きく、1994年に内部から遺骨と副葬品を納めた石棺が発見され注目を浴びました。
覆いの下が墓室への入り口です。

(Sarcófago de Reina Roja, Templo 13)
墓室は一般解放されていて、階段を登ると正面の墓室の中に赤い辰砂が残る石棺があります。 埋葬されていたのは「赤の女王」と通称される女性ですが、
被葬者については特定されていません。 緑の孔雀石で出来た副葬品の仮面が修復されて遺跡併設の博物館に展示されます。

(Pasillo en el interior de Templo 13)
これは「赤の女王」の墓室前の通路で、右も左も類似の墓室が並びますが中は空っぽです。 上に伸びる階段もあり内部構造は複雑で、
まだ他に石棺が見つかりそうな雰囲気を醸します。 貴族を埋葬する施設だったでしょうか。

(Templo de las Inscripciones)
そして神殿 13 の横に聳えるのが 大宮殿と並んでパレンケで最も有名な碑文の神殿で、九層の基壇上に神殿が設けられた 高さ 22.8m のピラミッド
です。 冒頭に書いたようにここから 1952年にキニチ・ハナーブ・パカル1世(パカル大王、615-683) の墳墓が手付かずの状態で発見されています。
写真は神殿の北側正面です。

(Templo de las Inscripciones)
これが東側面。 基壇上の神殿は屋根が完全な形で残っていて、屋根飾りも一部残されます。
勿論修復された後の姿ですが…。

(Templo de las Inscripciones)
正面から見上げてみました。 残念ながら現在は地下の墓室に入ることはおろか、ピラミッドに登る事も出来ません。

(Templo de las Inscripciones)
上部神殿のクローズアップ。 入り口が5つあり、内部の壁面には 3枚の石板にわたりパレンケの歴史が長文の神聖文字で刻まれている
そうです。 そして上部神殿内の床面中央左から地下の墓室に降りる階段が見つかった訳ですが…。

(Cámara funeraria, Museo Nacional de Antropología, D.F.)
地下の墓室の様子は、写真の通りメキシコシティーの人類学博物館に再現されています。 真ん中の赤く見える石棺内部にパカル大王の翡翠の
仮面が見えます。 でもこれは複製。

(Máscara de Pakal, Museo Nacional de Antropología, D.F.)
本物の仮面は博物館の通路に展示してあるので近くで見る事ができます。 無論ガラス越しです。
2008年には
パレンケ遺跡博物館 にも墓室の複製が作られ、石棺の
周りを歩いてまわる事が出来ます。



(Esculturas en estuco sobre las pilastras del templo superior)
神殿に昇れないので、上部神殿の柱に施された漆喰彫刻を望遠で撮ってみました。 碑文の神殿の建築に取り掛かったのはパカル大王自身と思われ
ますが、完成させて埋葬を執り行ったのは息子のカン・バラム2世です。 漆喰彫刻で描かれているのはパカル大王でしょうか。 パレンケの守護神
GII が踊る様子という解釈もあるようですが。

(Acueducto, Arroyo Otolum)
有名な大宮殿は碑文の神殿の筋向いですが後でゆっくり見ることにして、橋を渡って川の東側へ先に行ってみます。
この小さな川 (オトルム川、宮殿東側の水路) の護岸は当時のもので、高さ 3m 程の石組みで固められています。
神殿 17 - 21 Templos 17 - 21

(Templo 21)
水路の東側は十字のグループで有名ですが、2004年に調査中だった神殿 20、21 がどうなっているのか、更に南へ行って見ます。
写真は神殿 21 だと思いますが、残念ながら階段手前に綱が張ってあり立ち入り禁止、前回と同じです。

(Replica de tablero de Templo 21)
已むなく手摺部分の石板を望遠で撮って我慢します、レプリカに置き換えられているようですが。 神殿 21 は神殿 19 と似た造りで、2002年に
図像と文字が彫り込まれた玉座が発見され、博物館に移されています。

(Templo 19)
それでは神殿 19 へ と思いましたが、2004年には行けたのに今回は何とこちらも立ち入り禁止。 と言う事で、これは 2004年に撮った写真で、
神殿 19 の前面です。

(Pilastra pintada de Templo 19)
神殿 19 からは彩色漆喰彫刻がある柱や彫刻が施された玉座が発見されてい、現在は保護の屋根の下に複製が置かれます。 柱の実物は麓の
博物館に移されていますが、複製でも彩色されていて往時を偲ばせる迫力充分です。

(Trono de Templo 19)
こちらは彫刻が施された玉座、やはり複製でオリジナルは遺跡の博物館です。 柱と玉座の説明は
博物館のページ にあるので、そちらを参照ください。 どちらもパカル大王の3代後のアーカル・モ・ナーブ3世(721-736-)
の時代で、モ・ナーブ3世はパカル大王の孫にあたります。

(Templo 17)
すごすごと十字のグループに戻ります。 前回行けた神殿 19 に加え、神殿 17 まで立ち入り禁止区域になっていて、十字のグループの広場に居た
INAH の監視員に 「何時から、何故 立ち入り禁止にしているのか」 尋ねてみました。 「整備の為に少し前から禁止している…」 とあまり要領を
得ない返事。 中へ入れないか交渉したら 「神殿 17 までは良いが、その先は行くな」 との事。 仕方なく神殿 17 だけ行って見ました。
これが神殿 17 で、葉の十字の神殿の少し南になります。 神殿 17 は前にも行っているのですが折角なので。

(Tablero de los Guerreros, Templo 17)
これは神殿 17 の壁面彫刻で、複製に置き換えられているようです。 右側がカン・バラム 2世で、王の足元に跪く捕虜は 687年の戦いで敗れた
トニナの支配者 2 です。
パレンケ王朝は、神聖文字の解読により 17名の王が特定され、 431年即位のクック・バラム 1世から、
799年即位の 17代ハナーブ・パカル 3世まで、かなりの王の生年、即位の年、没年まで確認されています。
後古典期になると文字資料が少なくなり歴史は闇の中になります。 パレンケ等の古典期遺跡では残された碑文から歴史の一部が明らかになり、
その分 後の時代より興味深いものになります。

(Templo 20)
神殿 17 の前から木々の合間にピラミッド状の建造物が見えました。 神殿 20 のようです。
1999年の発掘で墳墓の存在が確認されたものの、建物の崩壊の恐れがあって
墳墓に近づけず、2011年4月になって神殿上部に開けた穴から小型カメラを下して内部を調査した事が写真つきで報道されていました。 真っ赤に
塗られた墓室や、貝や翡翠を含む副葬品が映っていて衝撃的です。 壁画などの様式から 400-550年頃のパレンケ初期の王墓と考えられ、詳細な
調査が待たれます。
多分この調査活動の為に周辺が立ち入り禁止にしてあったのだと思います。 白人の若いバックパッカーが禁止区域から出てきたので
聞いてみると 「誰もいないので中に入ってみたけれど素晴らしかった」 ですって。 悔しいですが良い年した日本人が異国の世界遺産でルール破り
も出来ません。
十字のグループ Grupo de las Cruces

(Templo de la Cruz Foliada)
十字のグループに戻って、まず葉の十字の神殿(Templo de la Cruz Foliada)です。 十字のグループはカン・バラム2世がパレンケの3守護神に
捧げた3つの神殿から成り、広場の西に太陽の神殿、北に十字の神殿、そして東にこの葉の十字の神殿があります。 残された碑文から3つの神殿の
完成は 692年とされます。

(Templo de la Cruz Foliada)
葉の十字の神殿は、正面の壁が失われ前列の柱廊が露出し、中央のマヤアーチ奥の後列に設けられた小神殿が顔を覗かせます。

(Tablero de Templo de la Cruz Foliada)
小神殿の中にあるのがこの石板。 隣の十字の神殿では石板は複製に付け替えられていますが、これも複製でしょうか。 石板は作られた当時は
彩色されていたのかもしれませんが、この写真で橙や青に見えるのはカビです。

(Detalle del Tablero)
現地の写真では図像が判り難いので、写真をエンボス処理してみました。 中央の捧げ物の台からマヤの世界樹が伸びて、左右に二人の人物が立ち、
その外側に碑文が刻まれます。 十字の神殿の石板では世界樹がキリスト教の十字架の様に見えますが、ここの石板では世界樹の十字の先から葉が
伸びており、葉の十字の神殿と呼ばれる所以です。

(Templo de la Cruz)
葉の十字の神殿から広場を見下ろすと右手に六層の基壇を持つ十字の神殿が見え、中央奥に四層の塔を持つ大宮殿、そして
左隅に屋根飾りの立派な太陽の神殿が見えます。

(Templo de la Cruz)
一度広場に降りて、十字の神殿に登り直します。 十字の神殿は十字のグループで一番大きな神殿で、葉の十字の神殿同様 正面の壁が失われ前列の
柱廊が露出しますが、屋根の上の建物飾りは残っています。

(Templo Interior)
中央のマヤアーチの奥に葉の十字の神殿同様小神殿があり、小神殿入り口の左右外壁に彫刻があります。

(Replicas, Museo Británico, Londres)
この写真はロンドンの大英博物館に展示された上の外壁の複製で、左は新王のカン・バラム、右はパイプを吸っているように見える事からスモーカーと
通称されますが、冥界の神と考えられます。 複製は19世紀末にアルフレッド・モーズレイが作った石膏の鋳型から作られたもので、風化が進む前の
姿が写し取られているかもしれません。

(Tablero de Templo de la Cruz)
そしてこれが神殿内部にあるメインの石板で、カビが生えて風化が進んでいるように見えますが複製で、実物は首都の人類学博物館に展示されます。
最新のArqueologia #113 Jan-Feb, 2012 で、その数奇な運命が伝えられています。 1787年に発見された3枚の石板は、断片化していた右の石板が
アメリカで修復されアメリカの博物館の所有となり、斜面に剥がれ落ちていた中央の石板はメキシコの国立人類学博物館へ保護され、左の石板は最後
まで遺跡に残っていましたが、19世紀末頃に3枚揃って人類学博物館所有になったそうです。

(Tablero original, Museo Nacional de Antropología, D.F.)
これは以前メキシコシティーの人類学博物館で撮った写真ですが、最近修復されたとの事ですから、より綺麗な姿に変わっているかもしれません。

(Detalle del Tablero)
中央の図像をエンボス処理しましたが、十字架は人類学博物館の写真の方が分り易いかもしれません。 廃墟に十字架を見つけた当時のスペイン人は
少なからず当惑したようで、パレンケをキリスト教に関連した神秘的な文化と考えた時期もあったようです。
図像には 684年のカン・バラム2世の即位がパレンケの守護神に関連付けて彫られているそうですが、左右の人物は誰なのか?
「古代マヤ王歴代誌」 では、小さい像がカン・バラム2世の幼少期で、大きい方が成人した姿と説明されます。 Arqueologia 特別号 #15 では、
小さい像は先王のパカル大王で、既に亡くなっているもののカン・バラム2世の権威づけの為に石板に刻まれている、と説明されます。
どちらが正しいのでしょう?

(Templo del Sol, Templo XIV)
次は太陽の神殿で、十字の神殿の上から見下ろしてみました。 左が太陽の神殿で、その右にあるのが神殿 14、更にその右にグループ 15 の
遺構が見えます。

(Templo del Sol)
これは太陽の神殿上部の写真で、建物の上の屋根飾りの隙間を通る風の音から、ハリケーンの到来を知ったとの説明もありました。

(Templo del Sol)
太陽の神殿の基壇上にある上部神殿は、前面の2本の柱を含めておよそ当時の姿を保っているようで、外壁や柱には漆喰彫刻が一部残ります。

(Templo Interior)
2本の柱の中の前室は柱廊になっていて、内部のマヤアーチの奥に他の十字の神殿と同様 小神殿があり、石板が飾られます。

(Tablero de Templo del Sol)
これがその石板で、図像のモチーフも他の十字の神殿の石板と似通っていますが、汚れていてあまりよくわかりません。

(Detalle del Tablero)
この画像で図像が読み取れるでしょうか。 大小の人物像は同じですが、世界樹だったところには2本の交差した槍が置かれ、太陽神が描かれた盾が
掛けられています。 十字のグループの3神殿は、それぞれの石板に 692年の神殿の奉納と 684年のカン・バラム2世の即位が、パレンケの3守護神
と共にが描かれ、パレンケの人達の信仰を知る重要な資料になるようです。
パレンケは 611年にカラクムルに攻め込まれて略奪を受けたことがわかっています。 その後王位に就いた キニチ・ハナブ・パカル1世 (パカル大王、
在位615-683年) はパレンケの再建に取り掛かり、大宮殿の改修に取り掛かったようです。 そしてパカル大王の後を継いだカン・バラム2世
(在位684-702年) も引き続きパレンケの神殿建設を行い、碑文の神殿を完成させた他、十字のグループの3神殿を建設し、現在パレンケを
訪れて目にする建造物の殆どはパカル大王とカン・バラム2世の時代以降と言う事になります。

(Templo 14)
太陽の神殿の右隣の神殿 14 はカン・バラム2世の後のカン・ホイ・チタム2世(在位702-711年) の建立と伝えられますが、この王は711年にトニナ
との戦争で捕らえられた事が、トニナに残る捕虜の石板から明らかになっています。 この王の後パレンケは一時衰退期に入り、次の王の即位は 721年
になります。

(Tablero de Templo 14)
これは神殿 14 の内部壁面彫刻です。 右側に立つカン・ホイ・チタム2世がパレンケの神像を受取る即位の場面で、神像を差し出しているのは
母のツァクブ・アハウ王妃でしょうか。 前述の通りこの王の栄光は長くは続きません。

(Portaincensarios, Museo del Sitio, Palenque)
十字のグループからはパレンケ特有の大型香炉立てが集中して見つかっていて、麓の博物館に 15本まとめて展示してありました。 20年に一度
古い香炉を集めて埋葬していったようですが、詳しくは
博物館の香炉の所
で説明してあります。 写真は博物館の展示から。

(Grupo 16)
十字の神殿の裏手(北側)にある、グループ 16に足を伸ばしてみました。 ここは 1993年に調査が行われ、碑文が刻まれた石板の破片等 パレンケの
歴史を語る上でも重要な発見がありましたが、現在は写真のような廃墟です。
包みの石板 はマヤの特別展で持ち出され、カン・トックの石板もカナダの展示会へ出展中でした。

(Grupo 16)
部屋、アーチ、通路、階段等が複雑に組み合わさった複合建造物で、平面図と比べてみても何処が何処やら。 パレンケに従属する地方の王の名前が
見つかったり、パレンケ以外で作られた土器類が回収されたりする事から、地方の従属王や貴族の宿所だったと考えられるようです。

(Templo de las Inscripciones y El Palacio)
オトルム川の東側はここ迄で次に大宮殿へ向かいますが、その前にお奨めの撮影ポイントです。
十字の神殿の上部神殿西側から碑文の神殿と大宮殿が眺望でき、絶好の撮影ポイントになります。 絵葉書だと言ってしまえばそれ迄ですが…。
大宮殿 El Palacio

(Lado oeste del Palacio)
まず大宮殿の外観を見てみましょう。 遺跡に入って直ぐの神殿 12 からは大宮殿の西側面の列柱と塔が見えます。

(Lado este del Palacio)
これは逆に東側から見た大宮殿で、十字の神殿からの眺望です。

(Lado norte del Palacio)
そして大宮殿の北側。 階段の上の構造物が無くなっているので、奥にある四層の塔も見えます。

(Maqueta del Palacio, Museo del Sitio)
麓の博物館に大宮殿を復元した立体模型がありました。 上の写真と見比べると 当時は北側にも東西側面と同じような屋根飾りと列柱を持つ建造物が
あった事が判ります。

(Lado sur y la Entrada)
これが大宮殿の南側で、観光ルートでは ここが入り口。 写真中央にある柵の右側の階段を登っていきます。

(Decoración en estuco al lado de la entrada)
階段横の柵の中には漆喰彫刻が残されます。 大宮殿は 400年近い年月の間に増改築が繰り返されたので、どの時代のものかわかりませんが、
作られた当時は彫刻に彩色が施され、見る者を圧倒したものと思います。

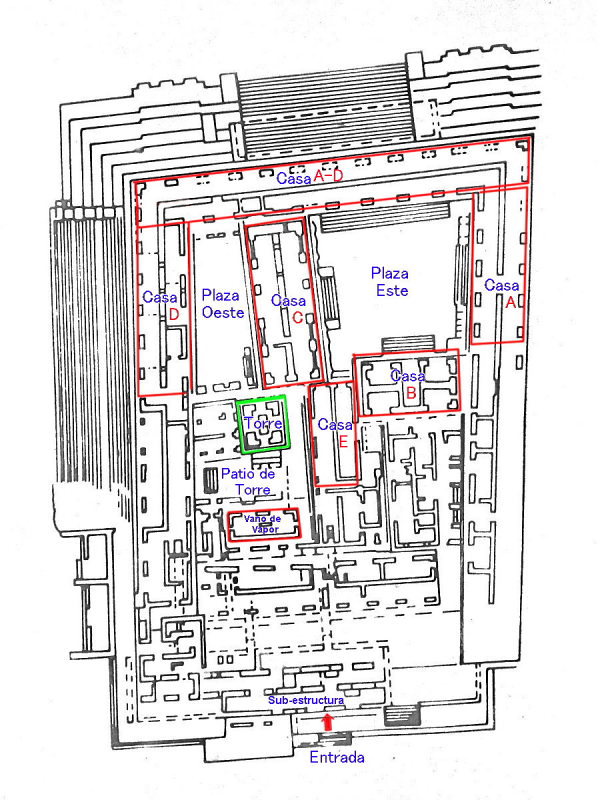
大宮殿は内部が複雑に入り組んでいるので 見取り図を追加しました。 赤線で囲った家 A(Casa A)から 家 E、家 A-D と 緑枠の塔(Torre)
が目印です。 地図同様 北を上にしてあり、赤い矢印に Entrada と記した所が大宮殿の入り口です。

(Pasillo de la entrada, El Palacio)
階段を登ると東西に伸びたマヤアーチのトンネルが口を開け、矢印に従ってここから入っていきます。

(Pasillo de la entrada, El Palacio)
中は薄暗い迷路で、この写真にあるように灯り取りの窓から入る光と 所々に取り付けられた裸電球を頼りに出口を目指します。

(Salida hacia la parte superior de El Palacio)
地下通路から最後の階段を登り、ここが出口です。 青の矢印は斜線が引いてあって進入禁止、つまりここは宮殿に入るだけの一方通行で、戻れま
せん。 この出口の穴は大宮殿の基壇上部の南西角になります。

(Patio de la Torre y Casa D)
大宮殿は巨大な基壇上に、9つの建造物、4層の塔、3つの広場、地下室、スティームバス等が複雑に組み合わされていて、この写真には
塔の中庭 (Patio de Torre) と塔の下部、更に中央に家 D (Casa D) が見えます。
四層の塔には以前は登れたのですが、現在は立ち入り禁止! 係員に聞くとイタリア人の観光客が塔から落ちて、それ以来立ち入り禁止にしたとか…。
上から眺め下ろすと複雑な大宮殿の構成が少しは判り易くなるのですが。

(Patio de la Torre y Casa E)
これは塔の中庭とその東側の家 Eです。 大宮殿の建設は5世紀に遡るようですが、パカル大王の時代に大改築が行われ、現在目にする大宮殿は
およそこの時代以降に増改築されたものになります。 654年に落成した家 E には内部に楕円の円板が飾られ、その後少なくとも3代にわたって
王の即位の儀式がここで執り行われたそうです。

(Relieve ovalado de Casa E)
上の写真で家 E の前に立つ観光客の視線の先にあるのが、この楕円の石板です。 2004年には中に入れたのですが、現在は入り口に目の細かい網が
張られていて写真が撮れず、この写真は前回撮ったものです。 ここにあるのは複製だそうですが。
石板に刻まれているのは、右のパカル大王が左に座る母親のサク・クックから筒型の王冠を受取る場面です。


(Pintura Mural, Casa E)
大宮殿は赤を基本に彩色されましたが、この家 E だけは白く塗られたそうです。 壁にはこの写真のように部分的に当時の装飾壁画が残ります。

(Baño de Vapor)
大宮殿は公の場であると同時に、王族の居所でもあったそうで、塔の中庭の南側にはスティーム・バスがあります。 溝の左側に開いた入口から
スティーム・バスへ降りられます。

(El interior de Baño de Vapor)
これはスティーム・バスの中で、床面に穴が開けられ、下から水蒸気や熱風が送られたものと思います。


(Servicio de Baño)
周囲にはトイレが幾つも設けられ、この写真は塔の中庭の西側にあったもので、ガイドの説明によるとひとつが男性用、もうひとつが女性用との事、
真偽の程はわかりませんが。 トイレの下には水路が掘られ、水洗トイレになっていたようです。

(Subida a la Torre)
先に進みます。 これは西の広場 (Plaza Oeste) に移動して南の方を見返したところで、正面の建物の下がスティーム・バスでした。 そして左手前
には塔に昇る階段があります。 登りたいのはやまやまですが…。

(Patio Oeste)
西の広場の奥(北)まで行って、同じく南方向です。 左が家 C で、 右が家 D です。 家 C は西の中庭と東の中庭を仕切る形で
661年に建造され、宮殿の外壁に当たる家 D は更に後の時代に築かれます。

(Patio Oeste)
同じ西の広場を反対方向から。 広場の奥が家 A-D の西端になります。
広場に置かれた案内板によると、この広場は司令官たちの中庭とも呼ばれるようで、残された彫刻や文字から司令官の集まりに使われたと
考えられるそうです。

(Patio Oeste y Casa C)
家 C の回廊の柱には漆喰彫刻が残り、広場に接する基部側面には神聖文字を彫った石板が嵌め込まれています。 屋根部分の漆喰装飾は黒ずんで
何がなんだかわかりませんが、角柱の方は玉座に座る王が色々な姿で刻まれていて大きな羽飾りの被り物が目立ちます。


(Bajorrelieve en estuco, Casa C)
角柱の漆喰彫刻はかなり崩れていますが、その中から状態の良いものを3点。 右上の彫刻に刻まれた王は丸メガネを付けたような
トラロックの姿をとっていて、メキシコ中央高原の影響が窺われます。
漆喰彫刻にはカビもありますが、当時の彩色も一部残るようです。 石彫りではなく漆喰ですから、風雨に晒される所では 劣化の一途でしょうか。

(Lápidas con las inscripciones)
基壇の壁に嵌め込まれた石板には縦に3文字並んだ頭字体の神聖文字が等間隔に7セットあります。 サンタ・エレナ(サン・マルティール川下流域で、
タバスコ州のモラル・レフォルマの東) の貴族達の名前の他、663年のポモナの王の死も記されているそうです。 パレンケの戦勝記念でしょうか。
660年頃 この地域にカラクムルが進出してきてパレンケとも衝突を繰り返していたようです。






(Detalle de las inscripciones)
神聖文字は読めませんが、
ポモナ と聞いて紋章文字が見つからないか、文字を
拡大してみましたが、やはりどれかわかりません。 マヤ文字を少し勉強すればわかるのかもしれません。

(Bajorrelieve en estuco, Casa D)
家 D は宮殿の外壁に当たり、西側に並ぶ6本の列柱には彫りの深い漆喰彫刻が施されています。 柱は目の前になり近くから見上げる形に
なりますが、この彫刻はパカル大王がトウモロコシの神に扮して踊っている様子だそうです。

(Esquina suroeste de El Palacio)
これは大宮殿の北西角で、左奥の家 D から右手前の 家 A-D を通って東の広場 (Plaza Este) へ向かいます。

(Plaza Este)
これが北西側から見た東の広場 (Patio Este) で、大宮殿では一番広いスペースが確保されています。 捕虜を刻んだ石板が並べられていて、戦争
で捕えられた敵方の王や貴族がパレンケの王の前に引き出された場所と考えられるようです。 右が家 B で 661年に改築され、左の家 A は 668年
以降の建築になります。

(Plaza Este y Casa A en frente)
広場東側の家 A は、柱の漆喰装飾は失われていますが、広場に降りる階段の左右には捕虜を彫刻した石板が 9体分嵌め込まれています。

(Escultura de los Prisioneros, Casa A)
上の写真が階段左、下が階段右の石板です。 片方の手を反対の肩に当てるポーズは恭順の意を表しますが、頭飾りや首飾りなどは付けたままで、
ある程度の敬意は払われているように見えます。 刻まれた捕虜が誰なのか気になる所ですが、下帯に刻まれた文字からこれ等の捕虜が 662年の
一連の戦争で捕えられた事がわかっています。

(Plaza Este y Casa C)
家 A に向かい合った家 C には捕虜の石彫りの他に神聖文字が刻まれた階段が残され、より多くの情報を提供してくれます。

(Escalinata de las Inscripciones)
下が神聖文字の階段で、上が残された神聖文字です。 残っているのは縄が張られた所の上の三段だけで、解釈の難しい碑文のようです。
599年のカラクムルに対する敗北から始まってパカル大王の時代の戦勝が綴られ、659年には6名の捕虜を捕った事が記されているようですが、
詳細は充分読み解かれていません。

(Escultura de los Prisioneros, Casa C)
659年の6名の捕虜が階段の左右に3名づつ刻まれます。 階段の右の捕虜(下の画像の左)は、左側に記された文字でピパの王と判明しています。
ピパはポモナに関連付けられる都市で、西の広場に名前が残されたサンタ・エレナはモラル・レフォルマに近い都市で、この時代にウシュマシンタ川と
サン・ペドロ・マルティール川に囲まれた地域は、カラクムルやパレンケ等のマヤ超大国を巻き込んだ戦乱の最中にあったようです。
この戦乱の時代とその後については
モラル・レフォルマの石碑4 が興味深い
史実を伝えてくれます。

(El interior de Casa C)
家 C の内部は2列のマヤアーチで空間が確保され、それぞれが西の広場と東の広場に面しています。 上の写真が西の広場に面した柱廊、
下が東の広場に面した柱廊で、室内には漆喰装飾が一部残されます。

(Juego de Pelota, vista desde norte de El Palacio)
大宮殿の北側は東西にある家 A と家 D を繋ぐ家 A-D がカン・ホイ・チタム2世 (702-711?) の時代に作られますが、現在は両端の一部が
残るだけで、遺構上からは大宮殿の北側が見下ろせす。 この写真中央に見える石組みは大宮殿北東にある球戯場です。

(Casa A)
これは家 A-D の遺構上から見た家 A で、左手前の壁面が無くなっているので、屋根の内部構造が良く見えます。 こけし型の窪みが一定間隔で
空けられ、この工夫によって屋根部分を軽くして屋根の重さを分散させているそうです。

(El interior de Casa A)
大宮殿に入って、塔の中庭から西の広場、東の広場を回ってきました。 大宮殿の主な見どころはこの辺りまでで、家 A の東側の柱廊から
出口に向かいます。 家 A の北側は壊れているので、通路の奥に空が覗きます。

(Plastra con bajorrelieve, Casa A)
家 A の外側に面した角柱には漆喰彫刻が残ります。 これは遠くから撮った写真ですが、手を肩に当てて座っているのは捕虜のようです。
また角柱の奥には壁面に施された漆喰装飾が並びます。


(Decoración en estuco, Casa A)
周囲に飾りのついた円の中には肖像があったようですが、漆喰彫刻なので殆ど崩れてしまい、何が描かれていたのかよくわかりません。

(Parte interior de techo abovedado, Casa A)
紋章のような漆喰装飾の上は、既に説明したように重量を軽減し屋根の重さを分散させたこけし型の空洞が並びます。

(Parte sur de Casa B)
これは家 B の南側に広がる建造物の跡、遠くの緑の中には十字の神殿が見えています。


(Ventanilla de forma T)
これは家 B か家 E かはっきり記憶がありませんが、T字型窓と壁面装飾です。 こうした窓は大宮殿の随所に見られ、T字型が多いようですが、
逆T字型や十字型の窓もあり、彩色されたものも残ります。

(Parte sureste del Palacio)
これも家 B の南側で、この辺りは建物の崩壊が進み、あまり文献でも触れられません。 家 A や家 E 等より古い建造物になるかも
しれませんが、詳細はわかりません。

(Parte sureste del Palacio)
左は家 E の東面、正面は家 B の南面で、右に廃墟が広がります。

(Parte sureste del Palacio)
廃墟になった建物の窓は十字型が多く、やはり建造時期の違いでしょうか。

(Torre, Casa B y Casa A)
宮殿の出口に近づいて、右から家 A、家 B と四層の塔です。

(Parte sur de El Palacio y Templo de las Inscripciones a la izquierda)
大宮殿の南端に近づいて碑文の神殿も見えてきます。

(Dos niveles superiores del Torre)
四層の塔の上部です。 他のマヤ遺跡では見かけないユニークな塔ですが、天文観測に用いられたと言う解釈がある一方、物見の塔の役割を持って
いたという説もあります。 作られたのはパレンケの最後期になるクック・バラム2世の時代とされるので、都市間の争いが頻繁で軍事的な役割
が大きかったでしょうか。

(Estremo sur del Palacio)
大宮殿の南東角に戻ってきました。 ここから外付けの階段を降りて大宮殿に別れを告げます。 下の写真の内部の暗いマヤ・アーチが
大宮殿の入り口のトンネルでした。

(Máscara en estuco, Pared exterior norte del Palacio)
大宮殿内部はこれで終わりですが、ついでなので大宮殿の外側も詳しく見てしまいます。 これは下から見上げた家 A の東側で、漆喰彫刻が施された
角柱が5本あります。



(Decoracion en estuco, Pared exterior de Casa A)
角柱の漆喰彫刻を望遠で拡大してみました。 左端の彫刻が一番上の写真で、順に並べてあります。 左端には碑文が刻まれていて、マヤでは左右対称
が普通なので、一番右にもう1本碑文が刻まれた柱があったのではと思います。 2本目と3本目、および4本目と5本目の図柄が似通っていて、
即位と戦勝が描かれているようにも見えますが、主役はパカル大王でしょうか?

(Lado norte de El Palacio)
北側に回って、中央に幅広の階段がある大宮殿の北面。 観光ルートの入り口は南側ですが、ここの階段からも登っていけます。 東の広場へ
引き出される捕虜はこの階段を登らされたのでしょうか? 勝手な想像です。

(Lado norte de El Palacio)
階段の右側に屋根が取り付けられていて、下にある漆喰彫刻が保護されています。

(Máscaras en estuco, Pared exterior norte del Palacio)
これが残された漆喰装飾で、上の肖像が一番上の段です。 神像ではないようですから、パカル大王と考えるのが妥当な所でしょうか。
残っている部分から大宮殿全体がどのように飾り立てられていたのか知る術がありませんが、想像復元図でもあれば見てみたいものです。

(Casa D)
西側に回って基壇上の家 D の外側の角柱です。 柱は6本残っていますが、このうち4本に漆喰彫刻が残っていました。 左から4本目と一番右の
柱は彫刻の痕跡が認められる程度です。 遠くから望遠で一枚づつ写真に撮りました。 以下の画像です。 主役はパカル大王のようです。



(Decoracion en estuco, Pared exterior de Casa D)
大宮殿の北の地区 Zona norte de El Palacio

(Juego de Pelota)
見どころ沢山の大宮殿を後にして、北東にある球戯場 (Juego de Pelota) に行ってみます。 低層の基壇上に 東西に並行する二つの建造物で
球戯場が構成されます。

(Juego de Pelota)
これは南から見た球戯場。 一応修復はしてあるようですが、全面的に装飾が施された大宮殿と比べると、普通の球戯場です。 奥に見えるのは
北のグループの神殿です。

(Juego de Pelota)
球戯場には球戯の的となるマーカーがなく、周辺からもマーカーは発掘されていないようですが、球戯場の斜面中央には大きな石板が嵌め込まれて
いました。 何か彫られていたようですが、残念ながら既に風化してしまっています。

(Grupo Norte)
球戯場の北にある北のグループ (Grupo Norte) に行ってみます。 小さな神殿ふたつを含めて5つの神殿が同じ基壇上に並びます。 殆ど建物
装飾は残っていませんが、保護の為の屋根がひとつありました。

(Escultura en estuco de Tlaloc)
屋根の下にあったのがこの漆喰彫刻で、丸メガネをかけた中央高原の水の神、トラロック神のようです。

(Templos de Grupo Norte)
これは北のグループの一番西側の神殿で、建物の前面が失われ前面を支えた柱の下部が残ります。

(Templos de Grupo Norte)
これはその隣の神殿で、やはり前面が残っていません。 その右側に見える神殿 (西側から4番目の神殿) は前面を含めて屋根までまるまる
残ります。

(Templos de Grupo Norte)
5つの神殿がのった基壇に登りました。 上の写真では神殿の間に隠れて見えなかった 中央のちいさな神殿も前面と屋根が残りますが、神殿内部
には見るべきものは残されていませんでした。

(Templo del Conde)
北のグループの基壇上から南西方向に伯爵の神殿 (Templo del Conde) があります。 上部神殿の保存状態は良好で、この為19世紀始めに
パレンケを訪れたワルデック伯爵はここに滞在して遺跡をスケッチに写し取っていきます。 神殿の名称はワルデック自身が命名したようです。

(Templo 10)
伯爵の神殿の南西隣に神殿 10 があります。 基壇だけで上部神殿は殆ど残っていませんが、パレンケ初期の建造物だそうです。
パレンケの本格的な調査は大宮殿と碑文の神殿から始まり、十字のグループ、最近はその先の神殿 19-22 に焦点が向けられ、宮殿の北側については
あまり書かれたものがなく、詳細はあまりわかりません。 しかしこれ等の神殿群、そして球戯場はパカル大王が大々的な建築活動を開始する
前から既に存在していたようです。

(Monumento del Arqueologo Ruz Lhuiller)
神殿 10 からパレンケの出口に向かいます。 遺跡に入って最初に見た髑髏の神殿(神殿 12)の前に写真の小さな建造物があります。 これは
碑銘の神殿からパカル大王の墳墓を発見した考古学者、アルベルト・ルス・ルイリエルの墓石でした。 遺跡で眠れるなんて考古学者冥利に尽き
ますね。
遺跡併設博物館への道 Salida hacia Museo del Sitio
遺跡へ入ったのは朝9時前でした。 途中で休憩した訳でもありませんが、時計はもう1時を回っています。 まだ遺跡の博物館が残っているので、
一度遺跡を出て入り口前のレストランで軽く腹ごしらえ。
駐車場に停めた車で来た道を戻れば数分で博物館に着けますが、球戯場の先からオトルム川沿いに歩いて降りていくルートがあります。 以前はあまり
治安が良くないと言う話でしたが、途中に幾つか未訪問のグループもあるので、今回はトライしてみました。

(Camino hacia Museo del Sitio)
球戯場から 100m 位先に博物館を示す矢印があり、その先を下っていきます。

(Arroyo Otolum)
直ぐにオトルム川に至り、写真左が川の上流、右が下流で、橋を渡って先へ。
これは球戯場の先から博物館へ至る地図で、縮尺は中心部の地図と同じ、やはり北向きで、橋を渡った所が地図左下の緑の矢印です。

(Camino hacia Grupo C)
道は二股に分かれ、左がグループB とコウモリのグループ、右がグループC ですが、右の方が縄が張られて通せんぼ。 でも縄にぶら下がった
黄色いテープに書かれているのは 「注意」。 禁止ではないので、ここは縄をくぐって行って見ます。

(Arroyo Murciélago)
一般観光コースから少しはずれ、更に縄が張っている所の奥ですから、全く無人。 少し行くと今度はムルシエラゴ (コウモリ) 川を渡り
ます。 左が上流、右が下流です。
ムルシエラゴ川を渡ると直ぐにグループC がありました。 一応案内板も設置してありますが、苔だらけです。

(Grupo C)
グループC はムルシエラゴ川と更に東側のバルンテ川に挟まれた区域に位置し、自然の起伏を利用して 750-800年頃に作られた居住区です。
ピラミッド型建造物の他に個室のようなものも並び、発掘では埋葬が幾つかと、沢山の土器、石器の類が回収されているそうです。

(Bajando a Grupo B)
分岐点まで戻り、更に北へ向かって降りて行きます。

(Cascada Sombrilla y Baño de Reina)
道はオトルム川の東側に沿って下っていき、斜面から水が滝になって落ちていく様子も見えます。 滝はソンブリーリャの滝で、滝の下が
女王の水浴び場(Baño de la Reina)と呼ばれるようです。
滝の少し先がグループ B で、ここにも案内板。

(Grupo B)
グループB もオトルム川とムルシエラゴ川の間の段丘に築かれた居住区で、殆どの建物から土偶を伴う埋葬が見つかっているようです。
グループB での居住は更に時代が下がって 770-850年とパレンケの最晩年になります。

(Otra cascada en Arroyo Otolum)
道は下りが続き、オトルム川も段丘を駆け下りて、地形と水が作り出す自然が目を楽しませてくれます。
そして直ぐにコウモリのグループに入ります。

(Grupo de los Murciélagos)
コウモリのグループも川に挟まれた段丘にあり、グループ B、C より少し規模が大きな居住区で、埋葬と共にメタテ、モルカヘテ等の
調理器具も沢山見つかっており、パレンケの晩年を支える地域だったようです。

(Puente Chiapas)
コウモリのグループの先でオトルム川に吊り橋が懸けられています。 橋は長さが 24m あり、チアパス橋と立派な名前がついていますが、自然に
調和して優雅な姿を横たえます。 でも吊り橋ですから床板を揺らしながらパレンケで最後のアトラクション!

(Cascada espectador, arriba del Puente)
橋の上流側は、段丘から水が零れ落ちて幻想的な光景を作り出しています。 揺れる橋の途中で揺れが収まるのを待って写真撮影です。


(Camino a Grupo I, II, paso está prohibido)
チアパス橋を越えた所にグループ I, II の矢印がありましたが、黄色いテープが張られてここは立ち入り禁止!

(Entrada a Parque Nacional de Palenque)
そして程なく舗装道路に抜け、自然と廃墟を訪ねる散策は終了です。 道路を渡って右側に遺跡併設の博物館があり、更にたっぷり1時間かけて
パレンケのおさらい。
博物館は別ページ にまとめてあります。
写真は舗装道路に戻って左側にある遺跡公園の検問所で、遺跡はこの先です。 博物館の後は集合バスで上の遺跡入口に戻り、置いてきた車で帰途に
就きます。 博物館を含め、およそ7時間半のパレンケ遺跡滞在でした。